NEW [ 53177 ] 店舗物件:JR山陽本線 新長田 徒歩2分
JR山陽本線 新長田 徒歩2分
神戸市営地下鉄西神山手線 新長田 徒歩2分
神戸市営地下鉄海岸線 新長田 徒歩2分
飲食店可(重飲食含む)
保険等加入:要加入
演奏可能/ 深夜営業可能
前面ガラス張り/ 看板取付スペースあり
入居時期:相談
地域 |
兵庫県神戸市長田区 松野通 |
||
業態 |
スケルトン |
||
最寄駅 |
− |
||
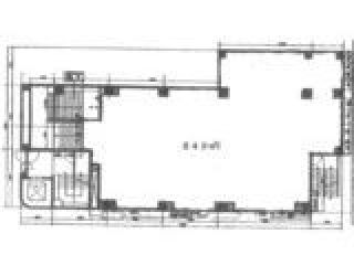
坪数 |
73.20坪 |
賃料 |
80.751万円 |
階数 |
1階 |
敷金/保証金 |
0万円/1,000万円 |
造作価格 |
0万円 |
||
アクセス数 |
1,891件 |
店舗情報
| 店舗の状態 | − | ||
|---|---|---|---|
| 業態:大分類 | スケルトン | 業態:中分類 | 重飲食可 |
| 業態名 | − | ||
| フランチャイズ区分 | − | フランチャイズブランド名 | − |
| 立地区分 | − | 賃貸借区分 | 賃貸物件 |
| 営業開始年月 | − | 初期投資総額 | − |
| 出展タイトル | 店舗物件:JR山陽本線 新長田 徒歩2分 | ||
|---|---|---|---|
| 出展方法 | 一般取引(スケルトン) | ||
| 住所 | 兵庫県神戸市長田区 松野通 | ||
|---|---|---|---|
| 駐車場台数 | (占有) −台 (共有) −台 | ||
| 前面道路 | − | 号線 | −号線 |
| 交通手段 | (沿線) − (最寄駅) − (距離) 徒歩 −分 | ||
| 店舗階数 | (店舗) 1階 / (建物) −階 | 店舗階数:備考 | 6階建 地下1階/1階部分 |
| 建坪数(店舗坪数) | 73.2坪 (242平米) | 敷坪数 | − 坪 (− 平米) |
| 建物築年 | − 年 | ||
| 席数 | (席数) −席 (備考) − | ||
| 店舗情報:備考 | − | ||
| 店舗種別 | 賃貸物件 | ||
|---|---|---|---|
| 賃料 | 80.751万円(税込) | 管理費・共益金 | 0万円(税込) |
| 看板使用料 | − | 敷金・保証金 | 敷金0万円/保証金1,000万円 |
| 礼金 | 110万円 | ||
| 賃貸借契約種別 | − | 賃貸借契約期間 | − |
| 更新料 | − | 業種制限 | − |
| 入居者制限 | − | 営業時間制限 | − |
| 解約前予告の期間 | −ヶ月前 | 敷金・保証金償却の有無 | 有り |
| 敷金・保証金償却:備考 | − | ||
| 建築協力金の有無 | − | 建築協力金の金額 | − |
| 建築協力金返済期間 | − | 建築協力金:備考 | − |
| 物件管理者情報 | 株式会社M&Aオークション(東京都知事(4)第85509号) | ||
| 賃貸借条件:備考 | − | ||
設備情報
| ダクト | − | グリスト | − |
|---|---|---|---|
| リース残高 | − | リース対象物品 | − |
| リース:備考 | − | ||
| 直近の改修日 | − | 改修費用 | − |
| 改修の内容 | − | ||
| 譲渡対象外造作物 | − | ||
| 設備情報:備考 | − | ||