NEW [ 71938 ] 名古屋市・栄3丁目のビル3階・76坪
◎栄・三蔵通沿い路面店
◎地下鉄東山線栄駅より徒歩3分
◎飲食店不可、理・美容室不可、エステ系は要相談
◎即入居可
◎内覧も予約の上、随時可能
地域 |
愛知県名古屋市中区 栄3丁目15-4 |
||
業態 |
スケルトン |
||
最寄駅 |
名古屋市営地下鉄東山線 栄駅 |
||
坪数 |
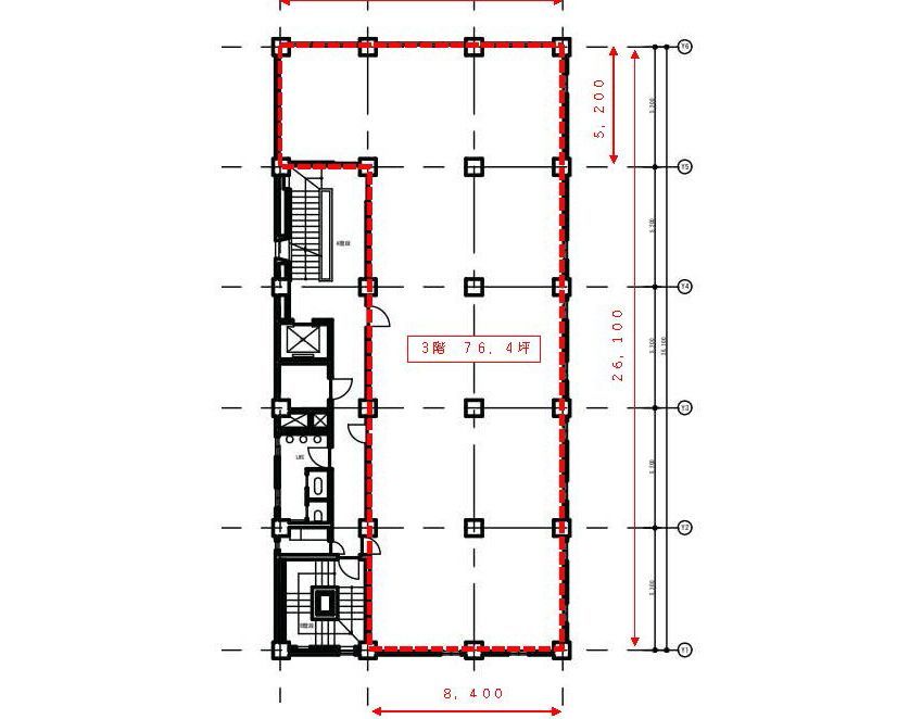
76.40坪 |
賃料 |
104.896万円 |
階数 |
3階 |
敷金/保証金 |
賃料の10ヶ月分 |
造作価格 |
0万円 |
||
アクセス数 |
78件 |
店舗情報
| 店舗の状態 | 閉店済み | ||
|---|---|---|---|
| 業態:大分類 | スケルトン | 業態:中分類 | 飲食不可 |
| 業態名 | − | ||
| フランチャイズ区分 | フランチャイズ非加盟 | フランチャイズブランド名 | − |
| 立地区分 | 都市型:専ら徒歩・自転車での来店が見込まれる | 賃貸借区分 | 所有物件 |
| 営業開始年月 | − | 初期投資総額 | − |
| 出展タイトル | 名古屋市・栄3丁目のビル3階・76坪 | ||
|---|---|---|---|
| 出展方法 | 一般取引(スケルトン) | ||
| 住所 | 愛知県名古屋市中区 栄3丁目15-4 | ||
|---|---|---|---|
| 駐車場台数 | (占有) −台 (共有) −台 | ||
| 前面道路 | − | 号線 | −号線 |
| 交通手段 | (沿線) 名古屋市営地下鉄東山線 (最寄駅) 栄駅 (距離) 徒歩 3分 | ||
| 店舗階数 | (店舗) 3階 / (建物) 9階 | 店舗階数:備考 | − |
| 建坪数(店舗坪数) | 76.4坪 (252.56平米) | 敷坪数 | − 坪 (− 平米) |
| 建物築年 | 1961 年 | ||
| 席数 | (席数) −席 (備考) − | ||
| 店舗情報:備考 | − | ||
| 店舗種別 | 所有物件 | ||
|---|---|---|---|
| 賃料 | 104.896万円(税込) | 管理費・共益金 | 42.02万円(税込) |
| 看板使用料 | 0万円 | 敷金・保証金 | 賃料の10ヶ月分 |
| 礼金 | 0万円 | ||
| 賃貸借契約種別 | 普通借家 | 賃貸借契約期間 | 2年 |
| 更新料 | 0万円 | 業種制限 | − |
| 入居者制限 | − | 営業時間制限 | − |
| 解約前予告の期間 | 6ヶ月前 | 敷金・保証金償却の有無 | 有り |
| 敷金・保証金償却:備考 | 一律10%償却 | ||
| 建築協力金の有無 | 無し | 建築協力金の金額 | − |
| 建築協力金返済期間 | − | 建築協力金:備考 | − |
| 物件管理者情報 | 株式会社林企画(岐阜県知事(2)第5066号) | ||
| 賃貸借条件:備考 | 共益費と別にゴミ回収費:12,540円/月 | ||
設備情報
| ダクト | - | グリスト | - |
|---|---|---|---|
| リース残高 | 0万円 | リース対象物品 | 無し |
| リース:備考 | − | ||
| 直近の改修日 | − | 改修費用 | − |
| 改修の内容 | − | ||
| 譲渡対象外造作物 | − | ||
| 設備情報:備考 | − | ||