NEW [ 73234 ] 貸店舗:札幌市軌道線 石山通 徒歩1分
札幌市軌道線 石山通 徒歩1分
・居抜き
・保険等加入:要加入
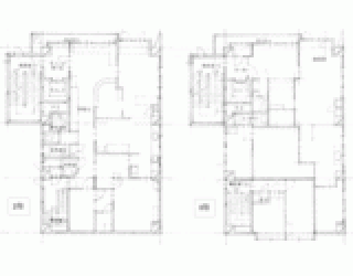
・2階はメンタルクリニック、3階は眼科居ぬき(各フロア待合・受付・診察室・暗室・院長室等あり)
・24時間利用可能
医療系のビルですが、事務所等他用途も相談可能。諸条件もご相談ください。
地域 |
北海道札幌市 中央区南二十二条 |
||
業態 |
その他 |
||
最寄駅 |
− |
||
坪数 |
94.88坪 |
賃料 |
57.6708万円 |
階数 |
2階 |
敷金/保証金 |
賃料の3ヶ月分 |
造作価格 |
応相談 |
||
アクセス数 |
8件 |
店舗情報
| 店舗の状態 | − | ||
|---|---|---|---|
| 業態:大分類 | その他 | 業態:中分類 | その他 |
| 業態名 | − | ||
| フランチャイズ区分 | − | フランチャイズブランド名 | − |
| 立地区分 | − | 賃貸借区分 | 賃貸物件 |
| 営業開始年月 | − | 初期投資総額 | − |
| 出展タイトル | 貸店舗:札幌市軌道線 石山通 徒歩1分 | ||
|---|---|---|---|
| 出展方法 | 一般取引(居抜き) | ||
| 住所 | 北海道札幌市 中央区南二十二条 | ||
|---|---|---|---|
| 駐車場台数 | (占有) −台 (共有) −台 | ||
| 前面道路 | − | 号線 | −号線 |
| 交通手段 | (沿線) − (最寄駅) − (距離) 徒歩 −分 | ||
| 店舗階数 | (店舗) 2階 / (建物) −階 | 店舗階数:備考 | 4階建/複数階 2階~3階部分 |
| 建坪数(店舗坪数) | 94.88坪 (313.64平米) | 敷坪数 | − 坪 (− 平米) |
| 建物築年 | − 年 | ||
| 席数 | (席数) −席 (備考) − | ||
| 店舗情報:備考 | − | ||
| 店舗種別 | 賃貸物件 | ||
|---|---|---|---|
| 賃料 | 57.6708万円(税込) | 管理費・共益金 | 4.95万円(税込) |
| 看板使用料 | − | 敷金・保証金 | 賃料の3ヶ月分 |
| 礼金 | 0万円 | ||
| 賃貸借契約種別 | − | 賃貸借契約期間 | − |
| 更新料 | − | 業種制限 | − |
| 入居者制限 | − | 営業時間制限 | − |
| 解約前予告の期間 | −ヶ月前 | 敷金・保証金償却の有無 | − |
| 敷金・保証金償却:備考 | − | ||
| 建築協力金の有無 | − | 建築協力金の金額 | − |
| 建築協力金返済期間 | − | 建築協力金:備考 | − |
| 物件管理者情報 | 株式会社M&Aオークション(東京都知事(4)第85509号) | ||
| 賃貸借条件:備考 | − | ||
設備情報
| ダクト | − | グリスト | − |
|---|---|---|---|
| リース残高 | − | リース対象物品 | − |
| リース:備考 | − | ||
| 直近の改修日 | − | 改修費用 | − |
| 改修の内容 | − | ||
| 譲渡対象外造作物 | − | ||
| 設備情報:備考 | − | ||