NEW [ 71398 ] 岐阜環状線沿い・割烹居抜き・家賃9万円台
◎長良地区で25年以上続く割烹
◎岐阜環状線沿い、マンション1階路面店
◎後継者無く25周年を機に譲渡を決断
◎家賃は税込み・92,400円!
◎造作譲渡:税込み150万円
(⇒譲渡時期も含め、更に相談に応じます!リース物件無し!)
◎現在も通常営業中につき、内覧は事前に予約願います。
地域 |
岐阜県岐阜市 長良3丁目 |
||
業態 |
飲食店 |
||
最寄駅 |
− |
||
坪数 |
17.97坪 |
賃料 |
9.24万円 |
階数 |
1階 |
敷金/保証金 |
賃料の3ヶ月分 |
造作価格 |
150万円 |
||
アクセス数 |
50件 |
店舗情報
| 店舗の状態 | 営業中 | ||
|---|---|---|---|
| 業態:大分類 | 飲食店 | 業態:中分類 | 寿司・割烹 |
| 業態名 | 割烹 | ||
| フランチャイズ区分 | フランチャイズ加盟 | フランチャイズブランド名 | − |
| 立地区分 | 郊外型:専ら車での来店が見込まれる、または、車・自転車ともに来店が見込まれる | 賃貸借区分 | 賃貸物件 |
| 営業開始年月 | 2000年09月 | 初期投資総額 | − |
| 出展タイトル | 岐阜環状線沿い・割烹居抜き・家賃9万円台 | ||
|---|---|---|---|
| 出展方法 | 一般取引(居抜き) | ||
| 住所 | 岐阜県岐阜市 長良3丁目 | ||
|---|---|---|---|
| 駐車場台数 | (占有) −台 (共有) 16台 | ||
| 前面道路 | 都道府県道 | 号線 | 77号線 |
| 交通手段 | (沿線) − (最寄駅) − (距離) バス −分 | ||
| 店舗階数 | (店舗) 1階 / (建物) 4階 | 店舗階数:備考 | − |
| 建坪数(店舗坪数) | 17.97坪 (59.4平米) | 敷坪数 | 17.97 坪 (59.4 平米) |
| 建物築年 | 1998 年 | ||
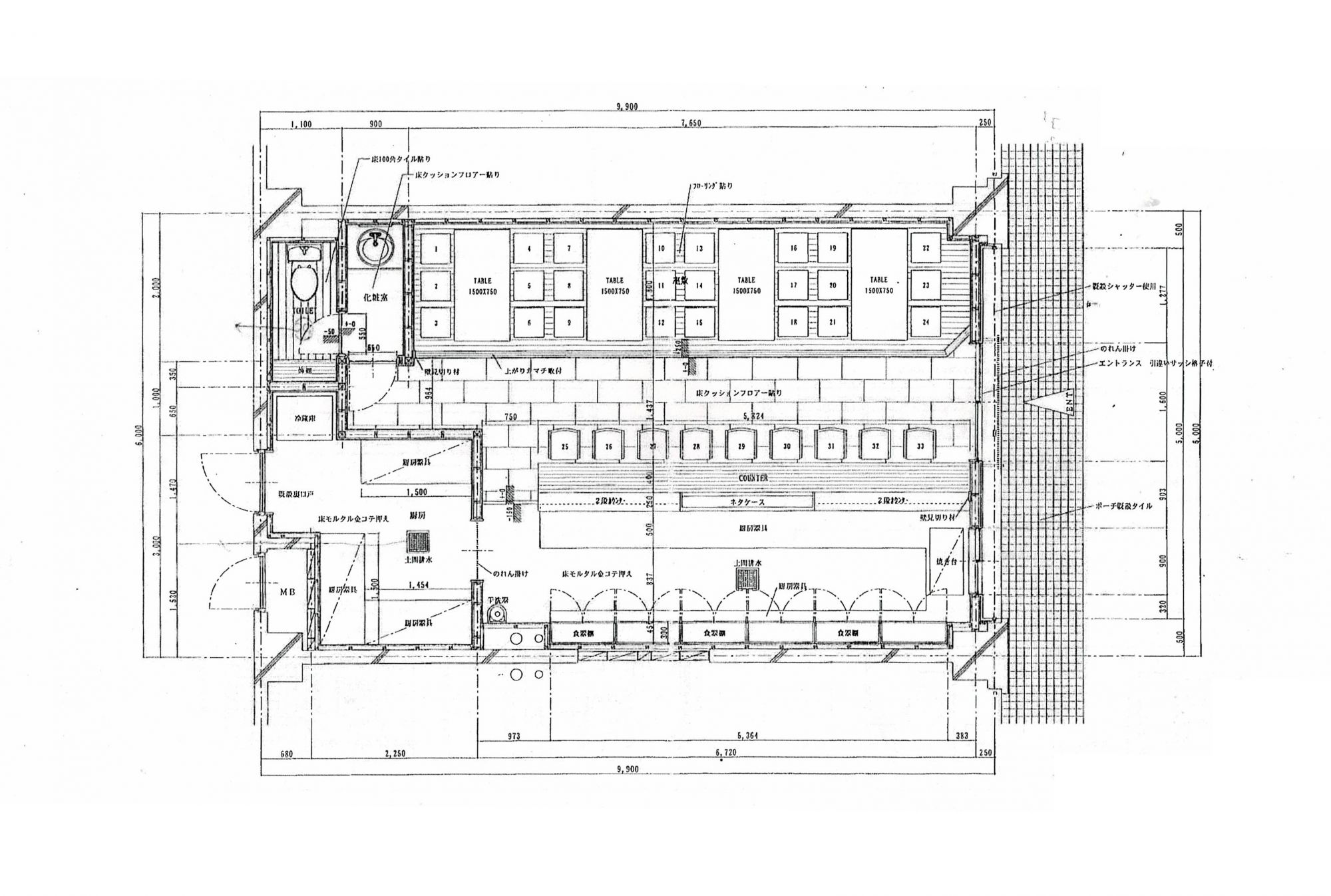
| 席数 | (席数) 23席 (備考) カウンター8席 テーブル15席 | ||
| 店舗情報:備考 | − | ||
| 店舗種別 | 賃貸物件 | ||
|---|---|---|---|
| 賃料 | 9.24万円(税込) | 管理費・共益金 | 0.363万円(税込) |
| 看板使用料 | 0万円 | 敷金・保証金 | 賃料の3ヶ月分 |
| 礼金 | 0万円 | ||
| 賃貸借契約種別 | 普通借家 | 賃貸借契約期間 | − |
| 更新料 | 0万円 | 業種制限 | − |
| 入居者制限 | − | 営業時間制限 | − |
| 解約前予告の期間 | 4ヶ月前 | 敷金・保証金償却の有無 | − |
| 敷金・保証金償却:備考 | − | ||
| 建築協力金の有無 | 無し | 建築協力金の金額 | − |
| 建築協力金返済期間 | − | 建築協力金:備考 | − |
| 物件管理者情報 | 株式会社林企画(岐阜県知事(2)第5066号) | ||
| 賃貸借条件:備考 | − | ||
設備情報
| ダクト | 有り | グリスト | 有り |
|---|---|---|---|
| リース残高 | 0万円 | リース対象物品 | 無し |
| リース:備考 | − | ||
| 直近の改修日 | − | 改修費用 | − |
| 改修の内容 | − | ||
| 譲渡対象外造作物 | − | ||
| 設備情報:備考 | − | ||