[ 71711 ] −
近隣に大型スーパーありロードサイド物件。
小売&飲食店2店舗同時営業可能、スケルトン店舗転貸相談可
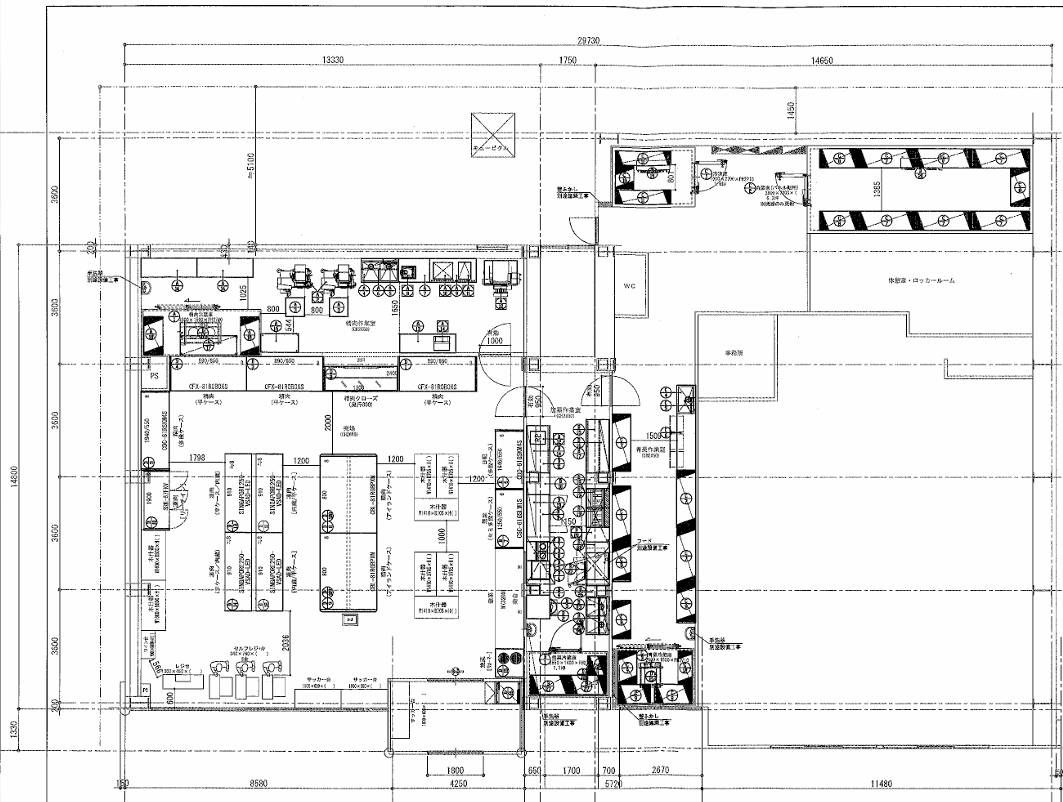
小売店舗加工場267㎡1
スケルトン店舗123.9㎡ 敷地内駐車場40台
精肉&惣菜小売店舗内外装設備一式居ぬき。ショーケース、精肉加工機器、大型冷凍冷蔵庫フライヤー、グリルその他
譲渡希望価格2500万円
別途諸費用110万円
地域 |
新潟県新潟市東区 河渡新町 |
||
業態 |
小売業 |
||
最寄駅 |
JR信越本線(直江津~新潟) 新潟駅 |
||
坪数 |
152.76坪 |
賃料 |
55万円 |
階数 |
1階 |
敷金/保証金 |
300万円/0万円 |
造作価格 |
応相談 |
||
アクセス数 |
111件 |
店舗情報
| 店舗の状態 | 閉店済み | ||
|---|---|---|---|
| 業態:大分類 | 小売業 | 業態:中分類 | その他小売業 |
| 業態名 | 精肉店、総菜・精肉加工店舗 | ||
| フランチャイズ区分 | フランチャイズ加盟 | フランチャイズブランド名 | − |
| 立地区分 | 郊外型:専ら車での来店が見込まれる、または、車・自転車ともに来店が見込まれる | 賃貸借区分 | 賃貸物件 |
| 営業開始年月 | − | 初期投資総額 | 6,000万円 |
| 出展タイトル | − | ||
|---|---|---|---|
| 出展方法 | 一般取引(居抜き) | ||
| 住所 | 新潟県新潟市東区 河渡新町 | ||
|---|---|---|---|
| 駐車場台数 | (占有) 40台 (共有) −台 | ||
| 前面道路 | 国道 | 号線 | 113号線 |
| 交通手段 | (沿線) JR信越本線(直江津~新潟) (最寄駅) 新潟駅 (距離) バス 30分 | ||
| 店舗階数 | (店舗) 1階 / (建物) 1階 | 店舗階数:備考 | − |
| 建坪数(店舗坪数) | 152.76坪 (505平米) | 敷坪数 | 400 坪 (1322.32 平米) |
| 建物築年 | 1969 年 | ||
| 席数 | (席数) −席 (備考) − | ||
| 店舗情報:備考 | − | ||
| 店舗種別 | 賃貸物件 | ||
|---|---|---|---|
| 賃料 | 55万円(税込) | 管理費・共益金 | 0万円(税込) |
| 看板使用料 | 0万円 | 敷金・保証金 | 敷金300万円/保証金0万円 |
| 礼金 | 55万円 | ||
| 賃貸借契約種別 | 普通借家 | 賃貸借契約期間 | 5年ごと自動更新 |
| 更新料 | 0万円 | 業種制限 | なし |
| 入居者制限 | − | 営業時間制限 | 無 |
| 解約前予告の期間 | 6ヶ月前 | 敷金・保証金償却の有無 | − |
| 敷金・保証金償却:備考 | − | ||
| 建築協力金の有無 | − | 建築協力金の金額 | − |
| 建築協力金返済期間 | − | 建築協力金:備考 | − |
| 物件管理者情報 | 心晴株式会社(新潟県知事(3)第5221号) | ||
| 賃貸借条件:備考 | − | ||
設備情報
| ダクト | あり | グリスト | あり |
|---|---|---|---|
| リース残高 | − | リース対象物品 | − |
| リース:備考 | − | ||
| 直近の改修日 | − | 改修費用 | − |
| 改修の内容 | − | ||
| 譲渡対象外造作物 | − | ||
| 設備情報:備考 | − | ||