[ 72027 ] 目黒線「武蔵小山駅」徒歩4分。【条件減額】店内美麗な1階寿司店居抜き物件☆
目黒線「武蔵小山駅」徒歩4分
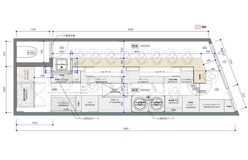
店内美麗1階寿司店居抜き物件
造作譲渡:165万円
NG業態:焼肉、焼鳥、中華、カレー不可
*臭い・煙の強い業態相談
契約満了日:2030年8月31日
不動産手数料:賃料1か月
保証会社/保険:要加入
引渡し:契約後10日
住宅街1階寿司店居抜き物件です
店内美麗で同種業態であればスピード開業も可能と思われます。
地元住民向けに地域密着型業態で出店をお考えの方におすすめです。
地域 |
東京都品川区 小山4丁目 |
||
業態 |
飲食店 |
||
最寄駅 |
東急目黒線 武蔵小山駅 |
||
坪数 |
5.73坪 |
賃料 |
23.1万円 |
階数 |
1階 |
敷金/保証金 |
賃料の10ヶ月分 |
造作価格 |
165万円 |
||
アクセス数 |
343件 |
店舗情報
| 店舗の状態 | − | ||
|---|---|---|---|
| 業態:大分類 | 飲食店 | 業態:中分類 | 寿司・割烹 |
| 業態名 | − | ||
| フランチャイズ区分 | − | フランチャイズブランド名 | − |
| 立地区分 | − | 賃貸借区分 | 賃貸物件 |
| 営業開始年月 | − | 初期投資総額 | − |
| 出展タイトル | 目黒線「武蔵小山駅」徒歩4分。【条件減額】店内美麗な1階寿司店居抜き物件☆ | ||
|---|---|---|---|
| 出展方法 | 一般取引(居抜き) | ||
| 住所 | 東京都品川区 小山4丁目 | ||
|---|---|---|---|
| 駐車場台数 | (占有) −台 (共有) −台 | ||
| 前面道路 | − | 号線 | −号線 |
| 交通手段 | (沿線) 東急目黒線 (最寄駅) 武蔵小山駅 (距離) 徒歩 4分 | ||
| 店舗階数 | (店舗) 1階 / (建物) −階 | 店舗階数:備考 | − |
| 建坪数(店舗坪数) | 5.73坪 (18.94平米) | 敷坪数 | − 坪 (− 平米) |
| 建物築年 | − 年 | ||
| 席数 | (席数) −席 (備考) − | ||
| 店舗情報:備考 | − | ||
| 店舗種別 | 賃貸物件 | ||
|---|---|---|---|
| 賃料 | 23.1万円(税込) | 管理費・共益金 | 0万円(税込) |
| 看板使用料 | − | 敷金・保証金 | 賃料の10ヶ月分 |
| 礼金 | 賃料の2ヶ月分 | ||
| 賃貸借契約種別 | 定期借家 | 賃貸借契約期間 | 4年*再契約料未定 |
| 更新料 | − | 業種制限 | − |
| 入居者制限 | − | 営業時間制限 | 24時迄 |
| 解約前予告の期間 | −ヶ月前 | 敷金・保証金償却の有無 | 有り |
| 敷金・保証金償却:備考 | 3か月 | ||
| 建築協力金の有無 | − | 建築協力金の金額 | − |
| 建築協力金返済期間 | − | 建築協力金:備考 | − |
| 物件管理者情報 | 株式会社ウェンズインターナショナル | ||
| 賃貸借条件:備考 | − | ||
設備情報
| ダクト | 直吹き | グリスト | 埋設 |
|---|---|---|---|
| リース残高 | − | リース対象物品 | − |
| リース:備考 | − | ||
| 直近の改修日 | − | 改修費用 | − |
| 改修の内容 | − | ||
| 譲渡対象外造作物 | − | ||
| 設備情報:備考 | − | ||