NEW [ 72066 ] 都営新宿線「菊川駅」徒歩1分!新大橋通り沿い1階居酒屋居抜き物件☆
都営新宿線「菊川駅」徒歩1分n!
駅前好立地1階居酒屋居抜き物件
造作譲渡:相談
初回更新日:2026年2月1日
仲介手数料:賃料1か月
保証会社/保険:要加入
引渡し:相談
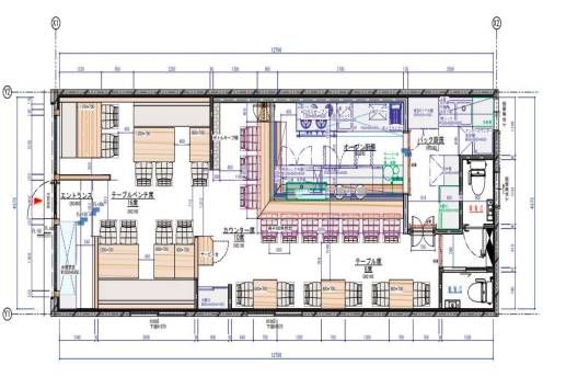
新大橋通り沿い1階居酒屋居抜き物件です。
駅導線上に位置し、地元住民向けに地域密着型業態で出店をお考えの方におすすめです。
地域 |
東京都墨田区 菊川2丁目 |
||
業態 |
飲食店 |
||
最寄駅 |
都営新宿線 菊川駅 |
||
坪数 |
18.16坪 |
賃料 |
44万円 |
階数 |
1階 |
敷金/保証金 |
賃料の6ヶ月分 |
造作価格 |
応相談 |
||
アクセス数 |
42件 |
店舗情報
| 店舗の状態 | − | ||
|---|---|---|---|
| 業態:大分類 | 飲食店 | 業態:中分類 | 居酒屋 |
| 業態名 | − | ||
| フランチャイズ区分 | − | フランチャイズブランド名 | − |
| 立地区分 | − | 賃貸借区分 | 賃貸物件 |
| 営業開始年月 | − | 初期投資総額 | − |
| 出展タイトル | 都営新宿線「菊川駅」徒歩1分!新大橋通り沿い1階居酒屋居抜き物件☆ | ||
|---|---|---|---|
| 出展方法 | 一般取引(居抜き) | ||
| 住所 | 東京都墨田区 菊川2丁目 | ||
|---|---|---|---|
| 駐車場台数 | (占有) −台 (共有) −台 | ||
| 前面道路 | − | 号線 | −号線 |
| 交通手段 | (沿線) 都営新宿線 (最寄駅) 菊川駅 (距離) 徒歩 1分 | ||
| 店舗階数 | (店舗) 1階 / (建物) −階 | 店舗階数:備考 | − |
| 建坪数(店舗坪数) | 18.16坪 (60.03平米) | 敷坪数 | − 坪 (− 平米) |
| 建物築年 | − 年 | ||
| 席数 | (席数) −席 (備考) − | ||
| 店舗情報:備考 | − | ||
| 店舗種別 | 賃貸物件 | ||
|---|---|---|---|
| 賃料 | 44万円(税込) | 管理費・共益金 | 0万円(税込) |
| 看板使用料 | − | 敷金・保証金 | 賃料の6ヶ月分 |
| 礼金 | 賃料の3ヶ月分 | ||
| 賃貸借契約種別 | 普通借家 | 賃貸借契約期間 | 3年 |
| 更新料 | 賃料の1.5ヶ月分 | 業種制限 | − |
| 入居者制限 | − | 営業時間制限 | − |
| 解約前予告の期間 | −ヶ月前 | 敷金・保証金償却の有無 | 有り |
| 敷金・保証金償却:備考 | 2か月 | ||
| 建築協力金の有無 | − | 建築協力金の金額 | − |
| 建築協力金返済期間 | − | 建築協力金:備考 | − |
| 物件管理者情報 | 株式会社ウェンズインターナショナル | ||
| 賃貸借条件:備考 | U | ||
設備情報
| ダクト | − | グリスト | − |
|---|---|---|---|
| リース残高 | − | リース対象物品 | − |
| リース:備考 | − | ||
| 直近の改修日 | − | 改修費用 | − |
| 改修の内容 | − | ||
| 譲渡対象外造作物 | − | ||
| 設備情報:備考 | − | ||