NEW [ 72271 ] 都営新宿線「市ヶ谷駅」徒歩1分!東郷通り沿い1階軽飲食相談可能物件☆
都営新宿線「市ヶ谷駅」徒歩1分!
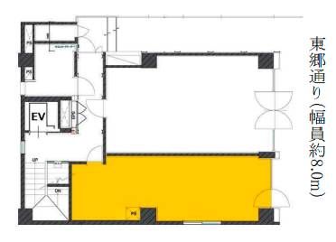
東郷通り沿い1階軽飲食相談可能物件
業種応相談
仲介手数料:賃料1か月
保証会社/保険:要加入
引渡し:相談
ビジネス立地1階軽飲食相談可能物件です。
周辺はオフィスビルと複数の大学施設があり近隣会社員や学生の昼夜問わない飲食需要が見込めます。
周辺は
地域 |
東京都千代田区 九段南4丁目 |
||
業態 |
スケルトン |
||
最寄駅 |
都営新宿線 市ヶ谷駅 |
||
坪数 |
9.29坪 |
賃料 |
28.6132万円 |
階数 |
1階 |
敷金/保証金 |
賃料の6ヶ月分 |
造作価格 |
0万円 |
||
アクセス数 |
31件 |
店舗情報
| 店舗の状態 | − | ||
|---|---|---|---|
| 業態:大分類 | スケルトン | 業態:中分類 | 軽飲食可 |
| 業態名 | − | ||
| フランチャイズ区分 | − | フランチャイズブランド名 | − |
| 立地区分 | − | 賃貸借区分 | 賃貸物件 |
| 営業開始年月 | − | 初期投資総額 | − |
| 出展タイトル | 都営新宿線「市ヶ谷駅」徒歩1分!東郷通り沿い1階軽飲食相談可能物件☆ | ||
|---|---|---|---|
| 出展方法 | 一般取引(スケルトン) | ||
| 住所 | 東京都千代田区 九段南4丁目 | ||
|---|---|---|---|
| 駐車場台数 | (占有) −台 (共有) −台 | ||
| 前面道路 | − | 号線 | −号線 |
| 交通手段 | (沿線) 都営新宿線 (最寄駅) 市ヶ谷駅 (距離) 徒歩 1分 | ||
| 店舗階数 | (店舗) 1階 / (建物) −階 | 店舗階数:備考 | − |
| 建坪数(店舗坪数) | 9.29坪 (30.71平米) | 敷坪数 | − 坪 (− 平米) |
| 建物築年 | − 年 | ||
| 席数 | (席数) −席 (備考) − | ||
| 店舗情報:備考 | − | ||
| 店舗種別 | 賃貸物件 | ||
|---|---|---|---|
| 賃料 | 28.6132万円(税込) | 管理費・共益金 | 0万円(税込) |
| 看板使用料 | − | 敷金・保証金 | 賃料の6ヶ月分 |
| 礼金 | 0万円 | ||
| 賃貸借契約種別 | 普通借家 | 賃貸借契約期間 | 2年 |
| 更新料 | − | 業種制限 | − |
| 入居者制限 | − | 営業時間制限 | − |
| 解約前予告の期間 | −ヶ月前 | 敷金・保証金償却の有無 | なし |
| 敷金・保証金償却:備考 | − | ||
| 建築協力金の有無 | − | 建築協力金の金額 | − |
| 建築協力金返済期間 | − | 建築協力金:備考 | − |
| 物件管理者情報 | 株式会社ウェンズインターナショナル | ||
| 賃貸借条件:備考 | − | ||
設備情報
| ダクト | − | グリスト | − |
|---|---|---|---|
| リース残高 | − | リース対象物品 | − |
| リース:備考 | − | ||
| 直近の改修日 | − | 改修費用 | − |
| 改修の内容 | − | ||
| 譲渡対象外造作物 | − | ||
| 設備情報:備考 | − | ||