NEW [ 72522 ] 金沢八景駅から近く面積大きく賃料が安い稀少物件
・京急本線・逗子線
金沢シーサイドライン
「金沢八景駅」徒歩4分
・スケルトン
・賃貸保証:要加入
・内覧:要事前予約
・ごみ処理代:相談
・看板設置料:相談
・諸条件ご相談ください。
・入居時期:相談
地域 |
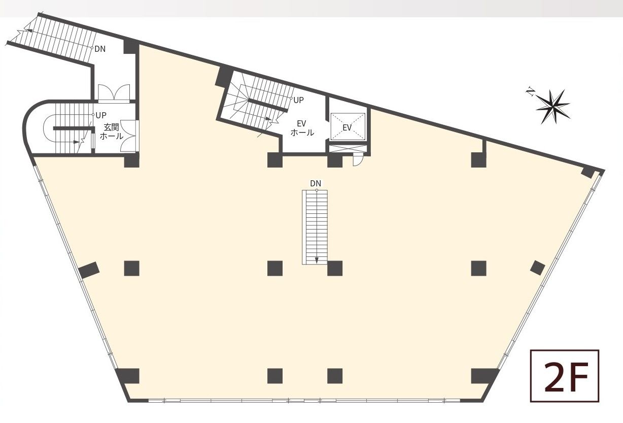
神奈川県横浜市金沢区 瀬戸1-5 |
||
業態 |
スケルトン |
||
最寄駅 |
京急本線 金沢八景駅 |
||
坪数 |
109.56坪 |
賃料 |
66万円 |
階数 |
2階 |
敷金/保証金 |
賃料の6ヶ月分 |
造作価格 |
応相談 |
||
アクセス数 |
16件 |
店舗情報
| 店舗の状態 | 閉店済み | ||
|---|---|---|---|
| 業態:大分類 | スケルトン | 業態:中分類 | 軽飲食可 |
| 業態名 | − | ||
| フランチャイズ区分 | − | フランチャイズブランド名 | − |
| 立地区分 | − | 賃貸借区分 | 賃貸物件 |
| 営業開始年月 | − | 初期投資総額 | − |
| 出展タイトル | 金沢八景駅から近く面積大きく賃料が安い稀少物件 | ||
|---|---|---|---|
| 出展方法 | 一般取引(居抜き) | ||
| 住所 | 神奈川県横浜市金沢区 瀬戸1-5 | ||
|---|---|---|---|
| 駐車場台数 | (占有) −台 (共有) −台 | ||
| 前面道路 | − | 号線 | −号線 |
| 交通手段 | (沿線) 京急本線 (最寄駅) 金沢八景駅 (距離) 徒歩 4分 | ||
| 店舗階数 | (店舗) 2階 / (建物) −階 | 店舗階数:備考 | RC地下1階、地上10階建ての2階 |
| 建坪数(店舗坪数) | 109.56坪 (362.18平米) | 敷坪数 | − 坪 (− 平米) |
| 建物築年 | − 年 | ||
| 席数 | (席数) −席 (備考) − | ||
| 店舗情報:備考 | − | ||
| 店舗種別 | 賃貸物件 | ||
|---|---|---|---|
| 賃料 | 66万円(税込) | 管理費・共益金 | 応相談 |
| 看板使用料 | − | 敷金・保証金 | 賃料の6ヶ月分 |
| 礼金 | 賃料の1ヶ月分 | ||
| 賃貸借契約種別 | 定期借家 | 賃貸借契約期間 | 3年間 |
| 更新料 | 賃料の1ヶ月分 | 業種制限 | 1階DOCOMO・3階フイットネスあり |
| 入居者制限 | − | 営業時間制限 | − |
| 解約前予告の期間 | 6ヶ月前 | 敷金・保証金償却の有無 | 有り |
| 敷金・保証金償却:備考 | 期間満了解約時20%(期間満了前の中途解約は別途) | ||
| 建築協力金の有無 | − | 建築協力金の金額 | − |
| 建築協力金返済期間 | − | 建築協力金:備考 | − |
| 物件管理者情報 | 株式会社ライフ・ドゥ(神奈川県知事(5)24692) | ||
| 賃貸借条件:備考 | 再契約は新賃料の1か月分(税込みに対して) | ||
設備情報
| ダクト | − | グリスト | グリストラップおよび排水管洗浄は指定業者あり |
|---|---|---|---|
| リース残高 | − | リース対象物品 | − |
| リース:備考 | 現テナント(1階DOCOMO・3階フイットネス) | ||
| 直近の改修日 | − | 改修費用 | − |
| 改修の内容 | − | ||
| 譲渡対象外造作物 | − | ||
| 設備情報:備考 | − | ||